Перейти к содержимому

Выбирайте с умом –
стройте с Knokey!

+7-980-400-7686

Заказать звонок

КАТЕГОРИИ

Инсталляция Tece для биде (9330000)

046825 1
046825 1046825 2
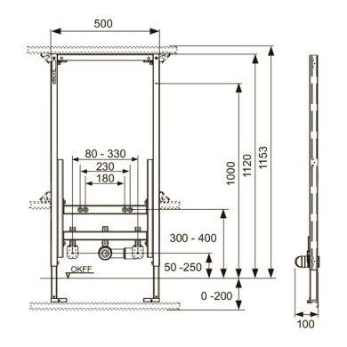
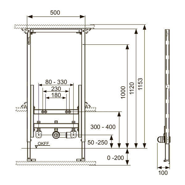
Инсталляция для биде TECEprofil предназначена для крепления на профиле TECEprofil или монтажа в металлических или деревянных каркасных стенах, перед стеной или в качестве углового модуля. Характеристика Значение Тип управления Механический Вес, кг 13 Ширина инсталляции, см 50 ...Читать далее
ООО "НОЛЭКС"
Проверено
32 777,00 ₽


Производитель: Tece Tece
+
Кнопка добавить в корзину появится, как только вы сделаете выбор из указанных выше значений
  • Описание

Инсталляция для биде TECEprofil предназначена для крепления на профиле TECEprofil или монтажа в металлических или деревянных каркасных стенах, перед стеной или в качестве углового модуля.

Характеристика Значение
Тип управления Механический
Вес, кг 13
Ширина инсталляции, см 50
Монтажная глубина, см 10-20
Монтажная высота, см 11,2-13,2
Режим слива 1-режимный (полный слив)
Назначение Для биде
Расстояние между крепежными шпильками для унитаза, мм 180, 230
Страна-производитель Германия
Тип товара Инсталляция
Метод крепления В капитальную стену и пол
Объем смыва, л 10
Артикул 9330000